Login

Lost your password?
Don't have an account? Sign Up

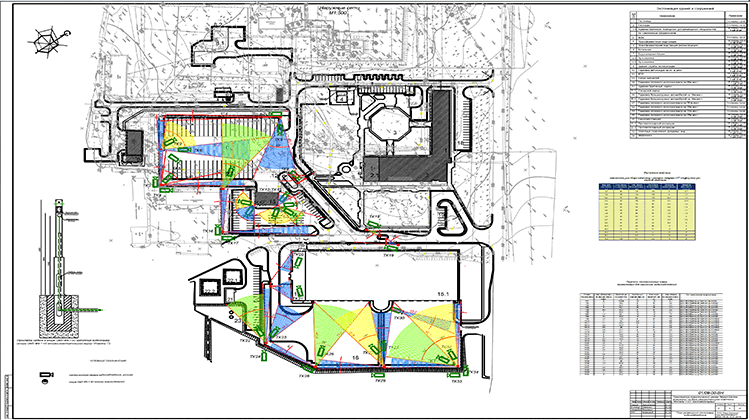
Строительный проект «Транспортно-логистический центр «Минск-Белтаможсервис»  разработан с учетом основные направлений сфер услуг, оказываемых транспортно-логистическим центром:

  • — комплекс логистических услуг по хранению, обработке и оформлению грузов;
  • — жилищно-бытовые и культурно-развлекательные услуги.

Для выполнения перечисленных сфер услуг предусматривается проведение реконструкции существующих зданий , а также строительство новых зданий:

  • 1 Строительство парковки автопоездов на 46 м/мест ;
  • 2 Строительство КПП;
  • 3 Капремонт склада запчастей ;
  • 4 Строительство парковки легкового автотранспорта на 55 м/места;
  • 5 Строительство парковки легкового автотранспорта на 38 м/места ;
  • 6 Реконструкция административных помещений ресторана для размещения специалистов таможенного оформления;
  • 7 Строительство трансформаторной подстанции ;
  • 8 Строительство модульной котельной ;
  • 9 Капремонт водонапорной башни;
  • 10 Капремонт артскважин  ;
  • 11 Строительство парковки легкового автотранспорта на 25 м/места;
  • 12 Строительство насосной;
  • 13 Строительство противопожарных резервуаров;
  • 14 Строительство очистных сооружений ;
  • 15 Капремонт КНС;
  • 16 Капремонт очистных сооружений;
  • 17 Реконструкция существующей котельной под здание службы эксплуатации ;
  • 18 Строительство административного здания ;
  • 19 Строительство складского корпуса;
  • 20  Строительство парковки большегрузных автомобилей на 16 м/мест ;
  • 21 Строительство парковки большегрузных автомобилей на 16 м/мест ;
  • 22 Строительство парковки легкового автотранспорта на 25 м/места